在追求绿色建筑与节能环保的今天,空调系统的创新已成为行业焦点。本文将带您了解一种高效地板送风变风量空调系统(以下简称为地板送风VAV系统),揭秘其如何通过独特设计实现能源节约与舒适度双提升。
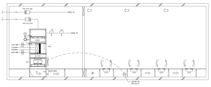
地板送风VAV系统采用“下送上回”气流组织,将一次风通过地板静压箱输送至人员活动区,再利用热空气自然上升原理经天花回风,形成高效循环。相比传统天花送风,这一设计不仅缩短了送风路径,更大幅提升热交换效率。

核心优势亮点
施工便捷性与灵活性:系统无需复杂风管网络,一次风直送地板静压箱,降低安装成本;当空间功能调整时,末端设备可快速重新配置,适应性强。
能效与舒适度双提升:制冷时送风温度可升高至16~18℃,制热时降至22~24℃,减少能耗;气流直接覆盖人员活动区,避免传统系统“上热下冷”的不均匀问题。


智能控制策略
AHU单区域送风:通过风机变频维持地板静压箱静压稳定,确保送风均匀。

HU多区域送风:主风管定静压调控结合区域静压阀,实现各分区独立静压控制。

末端设备选型指南
根据空间需求灵活选用压力相关型末端设备,例如:
开放式办公区推荐使用地板式风机动力型变风量末端或旋流风口,实现均匀送风。
独立房间适用地板式风机动力型变风量末端或单风道变风量末端。
外区需制热时则可配置带电加热的风机动力型末端或风机盘管机组。


RSV-UFFP 系列 地板送风风机动力型变风量末端

RSV-UFD系列地板送风旋流风口

RSV-UFDC系列地板送风单风道变风量末端


RSV-UFFC系列 地板送风风机盘管机组
通过本文的解读,是否对地板送风VAV系统有了更清晰的认识?欢迎在评论区分享您的应用经验或疑问,共同探讨绿色空调技术的未来!
皇家空调经过五十年的不懈努力,凭借其专业的技术与优质的服务,发展成为具有一定规模、业务遍及世界各地的跨国公司。雄厚的技术实力和优质的服务让公司成为行业内公认的VAV变风量末端国际专业制造商,同时赢得全国各地客户良好的口碑。未来,皇家空调将持续以“高品质”为核心,推动低碳技术创新,为建筑可持续发展注入更多动力。
